常德百年通用压缩机
www.123kyj.com

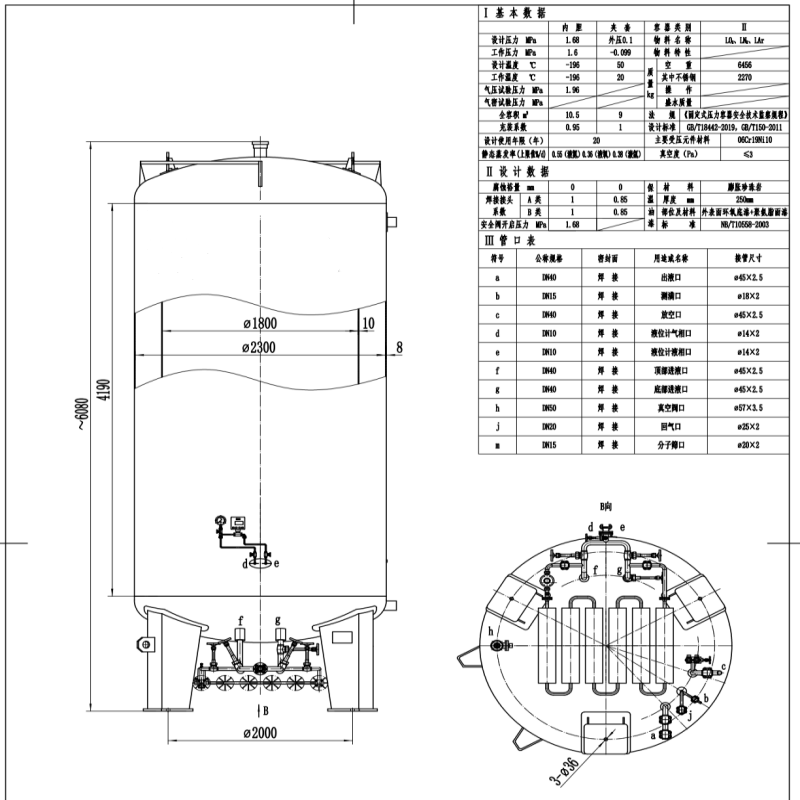
容积10立方
压力1.6MPa
液态氮罐
里层不锈钢S30408
外层Q345R
液氮储罐增压当贮罐内液体需要充装到其它贮藏室罐或汽化使用时,需要增加内筒压力,增加压力的高、低视用户实际使用需要而定,但不得超过贮罐工作压力。
其增压程序为:
1、检查压力表、液位计是否处于工作状态。
2、确定气体通过阀已经全开状态。
3、缓慢打开增压器前阀门(增压阀),使液体进入增压器汽化。若排液速度较快,内筒压力下降较快,可开大增压阀。当压力达到所需的工作压力时,关小或完全关闭增压器前阀,此时增压器内液体将继续蒸发至所需的压力。增压过程中,需密切注意压力表指示值变化。
液氮储罐液体排放液体排放有三种形式:
1、汽化器排液:
当罐内压力达到要求后,即可打开排液阀向汽化器供应液体,使之升温汽化送往使用现场,这是带有汽化器贮罐的主要排液方式。
2、由液体进出口阀排液:
此种排液是利用输液软管向槽车或其他较大贮罐供液,其操作规程基本同于充灌液体,只是液体进出口阀由进液变为了排液。
3、由排液阀(也称液体排放阀)或通过杜瓦管直接排液:
此种排液是向杜瓦罐等可移动小型容器供应液体,将小容器的金属软管与排液阀处(或通过杜瓦管)的接头接好,打开液体出口阀,即可供应液体,此种排液量较小,对固定贮罐根据具体情况可以不增压,即可向外供应液体。
液氮储罐贮存:液体贮存包括常压贮存和带压贮存两种方式:
1、常压贮存:
常压贮存的过程中,内筒的放空阀始终开着,让自然蒸发的气体由此阀排至大气,罐内压力不至于升高,由于自然蒸发很小放空阀只需微开即可。(开度以保持罐内压力不变为宜)。
2、带压贮存:
带压贮存的过程中,放空阀关闭,因为自然蒸发的气功体留在罐内,内筒压力逐渐升高,此时压力表显示压力,当内筒压力达到工作压力时应立即打开放空阀减压。
液氮储罐充排液同时进行的问题:有不少场合要求供应气体不断,对于有两个以上的罐是满足要求的。









